Окружная дорога, 185 км, стр. 6а
ryazan@kotel-kv.ru
8 (800) 551-70-98
Бесплатно по России
Видео
Фото
Чертеж
Уточните ваш запрос, если товар не подходит

Парогенератор 1200 кг угольный t 115 °С p 0.07 МПа в Рязани

Цена с НДС за товар
Цена не указана
Условия поставки:
Изготовление под заказ
ТК по России и Казахстану
Безналичный расчет
Этот товар вы можете купить в лизинг

Удобно размещается в маленьких котельных

Плавная выработка пара даже при подпитке холодной водой, без температурных колебаний

Работает с вентилятором и дымососом

В комплект поставки входит вентилятор, полный комплект запорной арматуры и КИП

Для очистки поверхностей нагрева от сажи остановка котла не требуется

Температура пара до 115 °С

Технические характеристики
Комплект поставки
Дополнительно потребуются
Отзывы
Паропроизводительность, кг/час 1200 Объем паровой части, м³ 0.53
Производительность, т/ч 1.2 Аэродинамическое сопротивление, Па (мм. вод. ст.) 23.8
Тепловая мощность, кВт 900 Тяга Принудительная
Диапазон регулирования теплопроизводительности, % 50-100 Объем топочной камеры, м³ 2.97
Топливо Уголь Размер топочной камеры, длина*ширина*высота, мм 2400*1100*1050
Низшая теплота сгорания топлива УГОЛЬ, кКал/кг 5230 Активная площадь решетки горения, м² 2.52
КПД (УГОЛЬ), не менее, % 78.6 Присоединительные размеры выхода пара, Ду 150
Расход топлива при максимальной нагрузке котла (УГОЛЬ), кг/ч 187 Присоединительные размеры по водяному тракту, Ду 32
Расход условного топлива, кг/ч 140 Присоединительные размеры по дымовым газам / диаметр дымовой трубы, мм 500
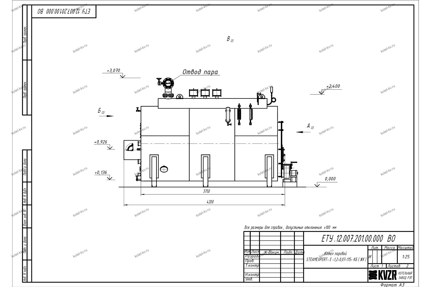
Температура пара, °C 100, 110, 115 Габаритные размеры, длина*ширина*высота, мм 4200*2050*2400
Избыточное давление пара, не более, МПа 0.07 Масса, кг 4200
Избыточное давление пара, не более, кгс/см² 0.7 Марка котла STEAMEXPERT
Избыточное давление пара, не более, бар 0.7 Энергоэффективность Высокая
Полный объем котла, м³ 5.4 Бренд STEAMEXPERT

Это устройство работает со вспомогательным оборудованием, которое приобретается отдельно. Если вы хотите сразу узнать стоимость всей установки, добавьте заинтересовавшие вас позиции в корзину. Чтобы точно расчитать стоимость доставки до вашего объекта, укажите его адрес в корзине и оправьте нам заявку. Обычно мы отвечаем в течение дня.

Автоматика парового котла Е Автоматика парового котла Е
Тип управляемого оборудования
Паровой котел Е
167 000
Насос CDL Насос CDM 3-3 (0.37 кВт)
Цена скоро
появится
Водоподготовка парового котла Водоподготовка парового котла
Цена скоро
появится
Газоход котла Газоход котла
Цена скоро
появится
Об этом товаре еще нет отзывов. Будьте первым!
Оставьте ваш отзыв
Угольный парогенератор 1200 кг
Парогенератор на угле 1200 кг
Изготовление парогенератора 1200 кг угольный
Производство парогенератора 1200 кг угольный

Парогенератор 1200 кг угольный

Парогенератор 1200 кг на угле

Парогенератор 1200 кг угольный изготовление

Парогенератор 1200 кг угольный производство

Парогенератор 1200 кг пара в час на 115 °С 0.07 МПА/0.7 кгс/см2/ 0.7 бар на угле в Рязани

Отличительные особенности угольного парогенератора STEAMEXPERT 1200-0.07-115

    • Повышенная надежность конструкции благодаря отсутствию неравномерных температурных расширений в жаровой трубе и трубной части теплообменника
    • Стабильная непрерывная выработка пара требуемых параметров при любой нагрузке благодаря большой паросборной камере - до 15 % от общего парового объема
    • Отсутствие капель воды в паре благодаря большой поверхности испарения и наличию сепаратора пара
    • Высокая скорость образования пара благодаря эффективной трубной системе котла
    • Возможность подпитки котла холодной водой +5 °С благодаря большому водяному объему и отсутствию температурных колебаний в трубной системе, работа парогенератора без экономайзера и подогревателя питательной воды
    • Эффективная и простая очистка от золы и сажи паром без остановки котла
    • Эффективная и простая очистка от выпадающего в процессе работы шлама без остановки парообразования

Устройство и описание

Устройство моделей STEAMEXPERT отличается от угольных парогенераторов 1200 кг пара других производителей – Ural-Power.

Парогенератор STEAMEXPERT 1200 - 0,07-115 на угле – горизонтальный, прямоточный, жаротрубный, состоит из двух жаровых труб. Пространство между обечайками заполняется водой, сверху устанавливается паросборник с сепаратором, в котором собирается образующийся пар. Для получения высокого КПД котла в хвостовой части жаровой трубы устанавливаются конвективные трубы. Снаружи конвективные трубы омываются горячими газами, внутри по ним движется и нагревается вода.

Колосниковая топка твердотопливного парового котла Колосниковая топка твердотопливного парового котла В нижней части топочной камеры укладываются колосники, на которых происходит горение топлива. Сбоку подсоединяется вентилятор для подачи воздуха на горение твердого топлива. Газы выходят из топки в верхней части и через системы газоходов поступают в дымовую трубу.

Подача питательной воды производится питательным насосом. В соответствии с ГОСТ для паровых котлов должно быть установлено два насоса, рабочий и резервный.

В котле предусмотрена система дренирования котла от шлама, позволяющая собирать и удалять шлам со всей внутренней поверхности котла без остановки работы. Для очистки парогенератора от сажи предусмотрена встроенная система очистки паром. Чистые поверхности нагрева сохраняют высокое КПД и энергоэффективность работы твердотопливного генератора пара 1,2 т -0,07-115 °С на протяжении всего производственного цикла парообразования.

На паросборник устанавливаются 2 предохранительных клапана

Принцип работы парогенератора 1.2 т, 0.7 кгс/см2(бар) 115 °С на угле

Твердое топливо сгорает в топке. Горячие газы омывают трубную систему, нагревают воду и производят насыщенный температурой до 115 градусов. При необходимости парогенератор может производить пар меньшей температуры – 95 градусов.

Для горения угля в топку вентилятором подается воздух. Дымовые газы проходят трубную систему и поступают дымовую трубу.

Угольный парогенератор 1.2-0.07 МПа должен быть укомплектован автоматикой. Автоматика ограничивает предельно допустимые параметры работы и давление пара, управляет вентилятором и подпиточным насосом и регулирует уровень воды в барабане. Температура сухого насыщенного пара регулируется изменением давления пара, при необходимости снижения температуры необходимо выставить соответствующее давление пара на электроконтактный манометре. Автоматика парового котла по заданному давлению производит управление дутьевым вентилятором и, следовательно, интенсивностью горения.

Питательная вода для парогенераторов подготавливается в соответствии с требованиями руководства по эксплуатации, «Правилам технической эксплуатации тепловых энергоустановок» и ГОСТ Р 51232-98. Для подбора водоподготовительной установки требуется провести химический анализ воды.

Подключение парогенератора 1200 кг с температурой 115 °С давлением 0.07 МПа на угле

Подключение и монтаж производятся по проекту, выполняемому специализированной организацией.

Подключение парогенератора на твердом топливе Подключение парогенератора на твердом топливе Один из вариантов схемы подключения котла КП приведен на схеме.

На сайте нашего завода вы можете купить все необходимое вспомогательное оборудование для подключения парогенератора 1200 кг 115°С 0.07 МПа на твердом топливе, а также заказать схему подключения в Рязани.

Безопасность работы

Безопасная эксплуатация обеспечивается выполнением требований

      • Инструкции по эксплуатации
      • Правил устройства и безопасной эксплуатации паровых котлов с давлением пара не более 0.07 Мпа (0.7 кгс/см2)
      • Правил технической эксплуатации тепловых энергоустановок

Требования к помещениям котельной регламентируются СП 89.13331.2016 «Котельные установки»

Угольный генератор пара 1.2-0.07–115 °С должен управляться автоматикой безопасности, имеющей сертификат соответствия.

Одним из самых важных устройств, обеспечивающих безопасную эксплуатацию котла, является предохранительный клапан парового котла. Он обеспечивает сброс пара при превышении давления в котле свыше допустимого и предохраняет установку от разрушения. Необходимые условия монтажа и эксплуатации подробно представлены в паспорте и руководстве по эксплуатации.

Подобрать требуемую мощность парогенератора для вашего предприятия вы можете по ссылке.

Комплект поставки парообразователя нашего производства

Схема подключения арматуры парового котла Схема подключения арматуры парового котла

      • Котельный блок - 1 шт
      • Предохранительный клапан парового котла - 2 шт
      • Вентилятор - 1 шт
      • Вентили - комплект
      • Указатель уровня - 2 шт
      • Запорное устройство указателя уровня 2 шт
      • Клапан обратный - 1 шт
      • Кран трехходовой под манометр- 2 шт
      • Манометр - 2 шт
      • Чугунные колосники

Дополнительно для подключения вам потребуются

      • Питательный насос – 2 шт (рабочий и резервный)
      • Автоматика управления - 1 шт
      • Водоподготовка (подбирается на основании химического анализа воды)
    • Труба дымовая - 1 шт
    • Газоходы - комплект

Гарантии изготовителя

Гарантийный срок - 24 месяца со дня ввода в эксплуатацию.

Гарантийное обслуживание включает в себя бесплатное устранение скрытых заводских дефектов, замену деталей и узлов вышедших из строя в период гарантийного срока при условии монтажа и эксплуатации оборудования Покупателем в соответствии с его назначением, технической документацией, техническими нормами, правилами ввода в эксплуатацию и эксплуатации данного оборудования.

Срок эксплуатации парового котла 10 лет.

Чертежи парогенератора 1200 кг угольного t 115 °С p 0.07 МПа

Описание товара

    Купить парогенератор 1200 кг угольный t 115 °с p 0.07 мпа в Рязани

    Для получения консультации укажите номер вашего телефона
    Смотреь обзор на

    Промышленный угольный парогенератор 1200 кг (производительность пара 200 кг в час, температура пара не более 115 С°, давление пара 0.07 МПа (0.7 кгс/см²), топливо - уголь). Применяется для технологических целей в производстве бетона, пеноблоков, газобетона и прочих строительных материалов, в пищевой промышленности для пастеризации молока и консервов, в сельском хозяйстве для запаривания кормов, для подогрева топлива, сушки древесины, в автоклавах и подобных технологических процессах

    Патенты на котельное оборудование

    Патенты

    Смотреть все патенты
    Сертификаты Завода

    Сертификаты

    Смотреть все сертификаты
    Членство в СРО

    Допуски

    Смотреть все допуски
    Отзывы о продукции котельного завода

    Отзывы о продукции котельного завода

    Смотреть все письма
    Аттестованная технология сварки

    Аттестованная технология сварки

    Смотреть все аттестаты
    Цена с НДС
    0
    Смотреть
    комплект